Auburn - Chalet

Auburn - Chalet

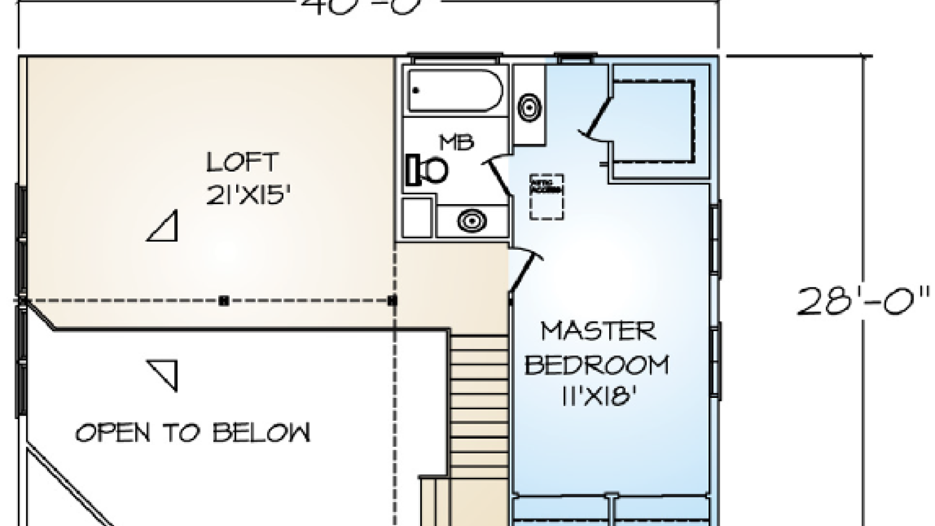
The Auburn Chalet panelized kit home boasts the space and features of a much larger custom home. This plan features a second floor master bedroom suite with private bath, dressing area, and ample closet storage areas. The loft area provides a multi-purpose area for additional sleeping space or a great play area for kids. This plan’s size and capability to be engineered for high snow-loads easily make it the ultimate design for a mountain home or luxury cabin.

FAQs:

About 6 to 8 days in typical conditions. Crew size, inspections, site, and weather affect timing.

Panelized Kit Home Specs:

  • Total Living Space: 1,978 ft² (184 m²)
  • Bedrooms: 3+ Loft
  • Bathrooms: 2
  • Garage: N/A
  • Ceiling Height: 8’
  • Covered Porch: 16 ft² (1 m²)
  • Home Plan Cost: Included (December 2025)
  • Building Kit Cost: $101,883 (December 2025)
  • Style: 2 Story
  • Minimum Payment: $5,300
Download Free Plan Review Set

Want More Information?

Invalid Input
Invalid Input
Invalid Input
Invalid Input
Invalid Input

Add to Cart

Contact Us

We will contact you and draw up requirements for the project and estimate.
Please enter your first name
Please enter your last name
Please enter a valid email address
Invalid Input