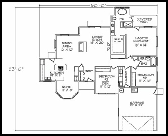
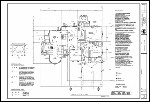
Custom Plans
If you didn't find what you were looking for in our pre-engineered plans, Pacific Modern Homes, Inc. (PMHI) can help you go from dream to completion of your own custom home. Contact your local PMHI dealer, who will help put your ideas in to a sketch that will then be turned into a completed engineered plan.

